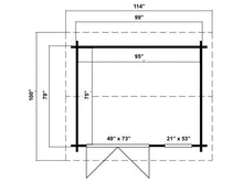
Playhouse information:
- Inside dimensions: 9'7" x 7'11″
- Wall thickness: 1-3/4""
- Floor surface: 50 Sq.ft
- Height: 8'
- Height of the wall: 7'
- Window type: Double-Pane
- Doors: Double-Pane
- Roof area: 84 Sq.ft
- Roof shingles not included. Roof structure included
- 5 Year Warranty
* This DIY Kit comes untreated. Photos with color are displayed as an example of possible color combinations.
DIY Kit 8x7 Solo Hub
Create a cozy retreat for teens—or even adults—as this compact but stylish backyard cabin fits smaller spaces without sacrificing quality. Ideal for studying, hobbies, or relaxation, it also doubles as a shed, workspace, or private hideaway as your needs evolve.
Key Features:
-
Compact but functional: Tailored for tighter spaces, yet roomy enough for creativity or relaxation
-
Bright & airy: Large windows and glass doors fill the space with natural light
-
Built to last: Weather-resistant wood structure designed for year-round use
-
Customizable finish: Ready to paint or stain to blend with any backyard style
-
Multi-purpose design: Perfect for studying, crafting, chilling—even repurposing later as a cabin or shed
What’s Included:
- Pre-cut boards for walls, roof and floors
- Windows and doors
- Easy-to-follow assembly instructions
Playhouse Assembly:
Our DIY product range come with an easy-to-follow instructions manual and can be assembled without any prior-knowledge. In case you want us to assemble the playhouse, give us a call at 800-660-4430 or email us at info@wholewoodplayhouses.com .






